Milano / Centro

ATTICO E SUPERATTICO DI LUSSO IN ZONA PRESTIGIOSA DI MILANO – ARCO DELLA PACE / CORSO SEMPIONE

Prezzo €4,350,000
Stato Generale - Disponibile
Riferimento 86681191
Localizzazione Milano / Centro

ATTICO E SUPERATTICO DI LUSSO IN ZONA PRESTIGIOSA DI MILANO – ARCO DELLA PACE / CORSO SEMPIONE

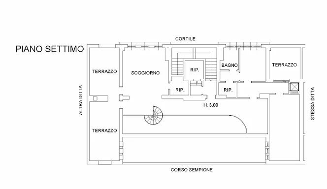
In una delle aree residenziali più esclusive e ricercate di Milano, a pochi passi dall’iconico Arco della Pace e dal verde viale di Corso Sempione, si eleva questa straordinaria residenza di rappresentanza, articolata in attico e superattico. La proprietà si sviluppa su circa 400 mq di superficie abitabile, impreziosita da circa 70 mq di terrazze panoramiche, dalle quali lo sguardo abbraccia una suggestiva vista sulla skyline milanese, tra cielo e architettura contemporanea. Gli spazi interni, ampi e luminosi, accolgono attualmente tre generose camere da letto e cinque bagni, con la possibilità di ricavare ulteriori due stanze e rimodulare la distribuzione secondo le proprie esigenze e il proprio stile di vita. La residenza offre doppi ingressi, doppi living e doppia cucina, elementi che esaltano comfort, funzionalità e prestigio. Completano la proprietà cantine, un box doppio e un box singolo. Il riscaldamento è autonomo, con una caldaia per piano, garanzia di efficienza e indipendenza. Il contesto è impreziosito da un elegante giardino condominiale, che assicura massima privacy, silenzio e un’atmosfera rarefatta, rendendo questa dimora una soluzione di lusso assolutamente unica nel cuore di Milano. Servizi di portineria, videosorveglianza e videocitofono completano un quadro di assoluta eccellenza.
Prestazioni
Arredato, Camino, Doppi vetri, Giardino condominiale, Porta blindata, Vasca idromassaggio, Illuminazione esterna, Parcheggio coperto, Ascensore, Portineria, Allarme, Cancello elettrico, Cassaforte, Guardiano, Inferriate, Videocitofono, Videosorveglianza.
Prossimità
Aeroporto (9 chilometro), Autobus (20 metri), Autostrada (6 chilometro), Centro città (2 chilometro), Negozi (50 metri), Palestra (50 metri), Parcheggio pubblico (1 metro), Parco (1 chilometro), Scuola elementare (100 metri), Strada principale (1 metro), Supermercato (100 metri), Taxi (20 metri), Tram (50 metri).

Riepilogo

Locali / Camere da letto8 locali
Superficie utilizzabile400 m² (Total surface area 470 m²)
In piediGrande lusso
CondizioneOttime condizioni/ristrutturato
EsposizioneN/A
VistaPanoramica, Città, Cielo, Cortile
DisponibilitàN/A
Acqua caldaScaldabagno, Privato
RiscaldamentoGas, Centrale, Autonomo
Piano6th/6
Livelli2
This site is registered on wpml.org as a development site. Switch to a production site key to remove this banner.